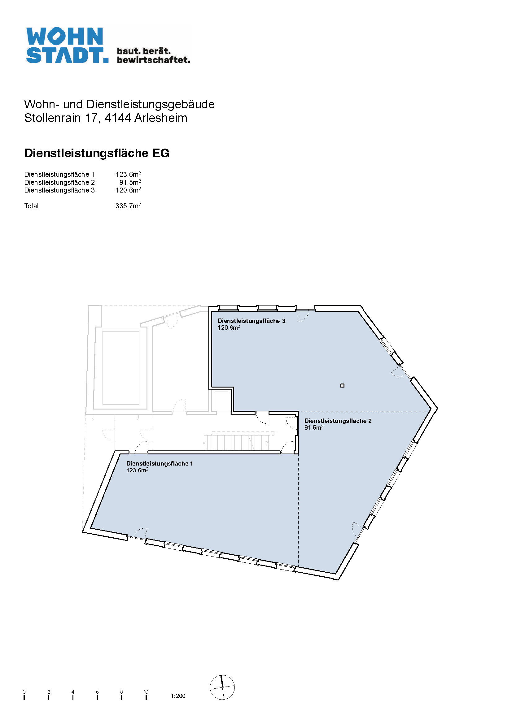
Im Zentrum von Arlesheim, direkt neben dem neuen Gemeindesaal "Setzwerk" realisiert Wohnstadt auf einem Grundstück der Gemeinde ein Wohn- und Dienstleistungsgebäude mit 9 Zweieinhalb- und 6 Dreieinhalbzimmerwohnungen.
Im Zentrum von Arlesheim, direkt neben dem neuen Gemeindesaal "Setzwerk" realisiert Wohnstadt auf einem Grundstück der Gemeinde ein Wohn- und Dienstleistungsgebäude mit 9 Zweieinhalb- und 6 Dreieinhalbzimmerwohnungen.
Die Wohnungen weisen Flächen zwischen 65 und 85 m2 auf, sind hindernisfrei konzipiert und im Minergie P Standard zertifiziert.
Die Fertigstellung ist auf Herbst 2026 terminiert
Die Vermietung startet in Kürze.